首页
关于言信
新闻动态
净化产品
净化工程
制药工程
联系我们
言信洁净系统整体供应商
MXJ@yanxin-sz.com
400-0512-884
语言
CN
EN
首页
关于言信
新闻动态
工程新闻
产品新闻
行业资讯
企业视频
净化产品
手工板
机制板
净化门
净化窗
净化设备
净化铝材
特制产品
净化配套
净化工程
医药厂房系统工程
电子厂房系统工程
手术室及医院工程
医疗器械系统工程
食品/饮料/保健品
实 验 室 系统工程
精密工业厂房工程
国外项目安装工程
制药工程
药厂造价咨询
制药工艺设计
制药机械设备
工艺管道系统
制药用水系统
药厂仓贮物流
调试维护改造
制剂辅料供应
联系我们
咨询热线:
18913079884
制药工程
当前位置:
首页
>
制药工程
>
制药工艺设计
产品分类
Category
药厂造价咨询
制药工艺设计
制药机械设备
工艺管道系统
制药用水系统
药厂仓贮物流
调试维护改造
制剂辅料供应
药品生产指导
NJP Series Automatic Capsule Filling Machine
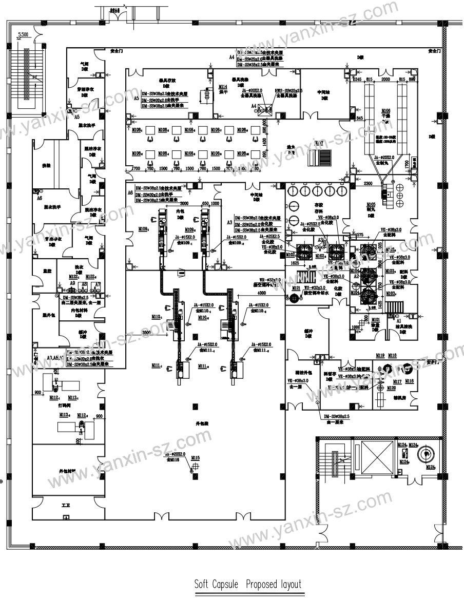
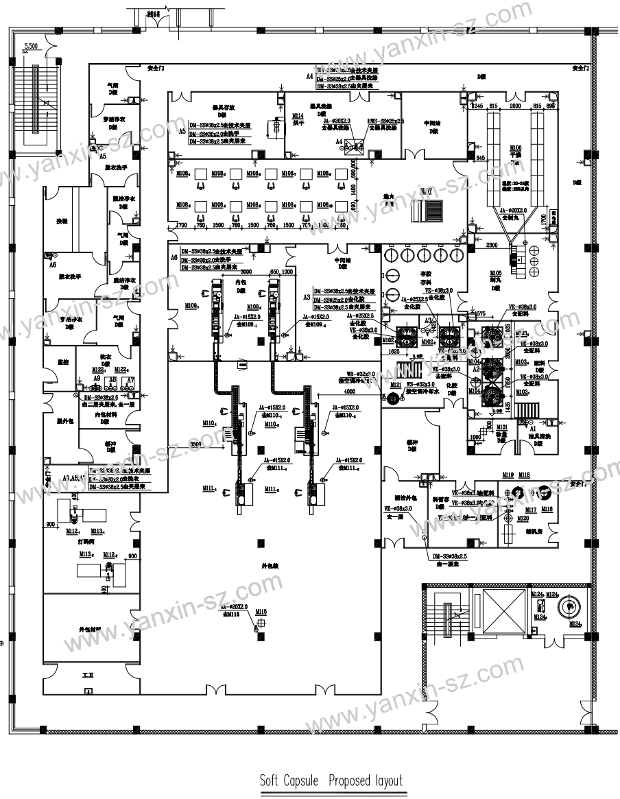
软胶囊车间工艺平面设计
软胶囊车间工艺平面设计
电话
QQ
留言
400-0512-884